產品中心
PRODUCT智慧農業 智造未來
- 農業氣象站
- 農業四情監測系統
- 蟲情測報燈
- 太陽能殺蟲燈
- 孢子捕捉儀
- 智慧農業氣象站
- 管式土壤墑情站
- 探針式土壤墑情監測站
- 土壤檢測儀
- 苗情監測站
- 智能吸蟲塔
- 性誘測報燈
- 鼠害監測設備
- 水肥一體機
- 害蟲監測預警設備
- 植物病害監測設備
- 生物鑒定儀
- 農業傳感器
- 植物生長監測儀
- 智能蜂箱
- 草原氣象站
- 農業設備
- 水果糖度檢測儀
- 高空測報燈
推薦文章
聯系我們
山東萬象環境科技有限公司
聯系人:王經理
服務熱線:15610293837
客服QQ:2962700085
客服微信:15610293837
公司地址:山東省濰坊高新區新城街道玉清社區光電路155號濰坊高新區光電產業加速器(一期)1號樓301

一、高標準農田氣象站產品簡介
高標準農田氣象站又稱農業氣象站,十四要素農業氣象站,高標準農田氣象站能夠實時監測農田中的各項氣象要素,為農業生產提供全面、實時的氣象數據支持,是針對農業環境監測以及作物生長狀況監控預警設計的一款氣象監測系統,低功耗、可快速安裝、多功能于一體的高精度氣象觀測設備。
WX-NQ14農業氣象站是一款高度集成、低功耗、可快速安裝、便于野外監測使用的高精度氣象觀測設備。
該設備由氣象傳感器,采集器,太陽能供電系統,立桿支架,云平臺五部分組成。免調試,可快速布置,廣泛運用于氣象、農業、林業、科學考察等領域。
二、高標準農田氣象站產品特點
1.低功耗采集器:靜態功耗小于50uA
2.標配GPRS聯網、支持擴展藍牙、有線傳輸
3.七寸安卓觸屏,版本:4.4.2、四核Cortex?-A7,512M/4G
4.支持modbus485傳感器擴展
5.太陽能充電管理MPPT自動功率點跟蹤
6.三米碳鋼支架,兩節螺紋旋接
7.短信報警,超限后向指定的手機上發送短信
8.ABS材質防護箱,耐腐蝕、抗氧化,防水等級IP66
三、高標準農田氣象站技術參數
1.采集器供電接口:GX-12-3P插頭,輸入電壓5V,帶RS232輸出Json數據格式,采集器供電:DC5V±0.5V峰值電流1A,
2.傳感器modbus、485接口:GX-12-4P插頭,輸出供電電壓12V/1A,設備配置接口:GX-12-4P插頭,輸入電壓5V
3.太陽能供電、配置鉛酸電池,可選配30W 20AH/50W 20AH/100W 100AH.充電控制器:150W,MPPT自動功率點跟蹤,效率提高20%
4.數據上傳間隔:1分鐘-1000分鐘可調
5.屏幕尺寸:1024*600 RGB LCD
6.部分傳感器參數
| 名 稱 | 測量范圍 | 分 辨 率 | 準 確 度 |
| 風 速 | 0~30m/s | 0.01m/s | ±(0.1+0.03V)m/s |
| 風 向 | 0~360°(16方向) | 1/16 | <3°(>1.0m/s) |
| 空氣溫度 | -40-80℃ | 0.1℃ | ±0.3℃(25℃) |
| 空氣濕度 | 0-100%RH | 0.10% | ±3%RH |
| 大氣壓力 | 30-110Kpa | 0.01Kpa | ±0.02Kpa(相對) |
| 雨量 | ≦4mm/min | 0.01mm | ±0.2mm |
| 光照 | 0-20W LUX | 1lux | 5% |
| 二氧化碳 | 500-5000PPM | 1PPM | ±50PPM±讀數的3% |
| 土壤溫度 | -40~80℃ | 0.01℃ | ±0.5℃ |
| 土壤濕度 | 0-100% | 0.01% | ±3% |
| 土壤電導率EC | 0-20000us/cm | 10us/cm | ±5% |
| 土壤PH(電極法) | 0-14 | 0.01 | ±0.1PH,±0.1℃ |
| 土壤氮磷鉀 | 0~1999mg/kg | 1 mg/kg | ±2% |
| 土壤蒸發量 | 0~75mm | 0.1mm | ±1% |
四、云平臺
1.CS架構軟件平臺,支持手機、PC瀏覽器直接觀測、無需額外安裝軟件。
2.支持多帳號、多設備登錄
3.支持實時數據展示與歷史數據展示儀表板
4.云服務器、云數據存儲,穩定可靠,易于擴展,負載均衡。
5.支持短信報警及閾值設置
6.支持地圖顯示、查看設備信息。
7.支持數據曲線分析
8.支持數據導出表格形式
9.支持數據轉發,HJ-212協議,TCP轉發,http協議等。
10.支持數據后處理功能
11.支持外置運行javascript腳本
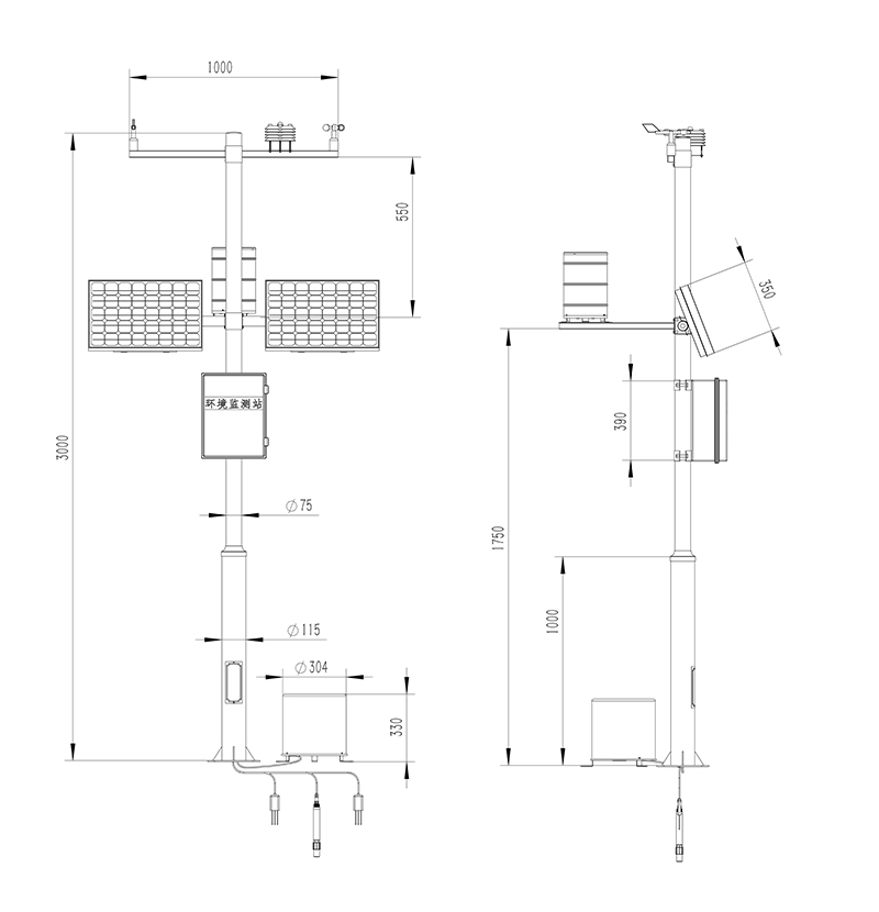
五、產品尺寸圖

六、產品結構圖

文章地址:http://www.jr528.net/nyqxz/50.html
- 上一篇:農業氣象環境物聯網監測系統
- 下一篇:八要素農業氣象站
-
小麥赤霉病監測儀麥田病害的“智能哨兵
2025-11-28 -
孢子檢測儀一款農業生產好幫手
2025-11-28 -
物聯網蟲情測報燈第一時間捕捉到蟲害的蛛絲馬跡
2025-11-27 -
玉米南方銹病監測儀是玉米田里的“健康衛士"
2025-11-27 -
太陽能殺蟲燈一款依托太陽能供電的環保滅蟲設備
2025-11-26 -
小麥蚜蟲在線監測系統,綠色防控助力小麥優質生長
2025-11-26 -
自動識別吸蟲塔:現代農業的 “蟲情智能監測官"
2025-11-25 -
頻振式殺蟲燈:農業防蟲的 “綠色守護工具”
2025-11-25 -
智慧蟲情測報系統——農業害蟲的“克星”
2025-08-07 -
管式土壤墑情站應用場景廣泛
2025-05-16 -
土壤水分測量系統諸多優勢
2024-05-31 -
苗情監測站,農業四情監測系統里重要的一環
2025-03-18
